Bifamiliare affiancata

Indirizzo: Via Valle 88, 36033 Isola Vicentina, VI
Descrizione: Open House il giorno sabato 11 aprile dalle ore 9.00 alle ore 13.00!
Prenota la tua visita!
In una delle cornici più riservate e suggestive di Isola Vicentina, precisamente in Via Valle 88, sorge questa splendida porzione di bifamiliare affiancata. Una dimora pensata per chi non vuole scendere a compromessi tra la vicinanza ai servizi del centro e il desiderio di una vita scandita dalla tranquillità e dal verde circostante.
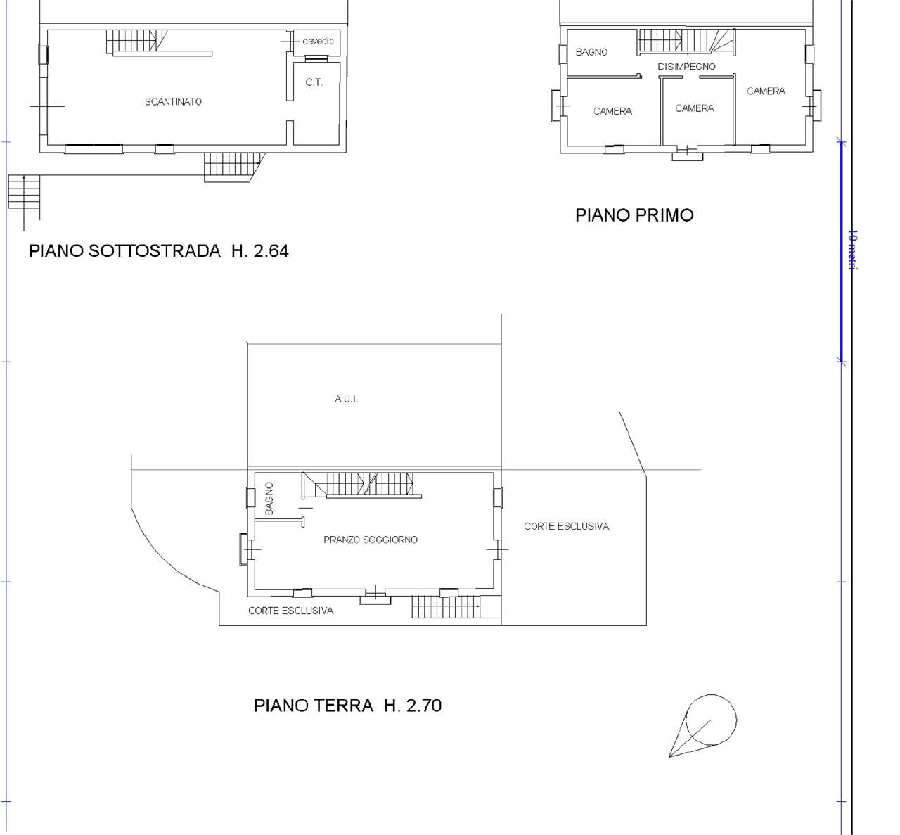
Varcando la soglia del piano terra, si viene accolti da una zona giorno open space di ben 45 mq. A servizio del piano, troviamo un bagno funzionale completo di doccia, perfetto per la vita quotidiana o per gli ospiti.
Salendo al primo piano, la zona notte è stata progettata per garantire il massimo riposo a tutta la famiglia. La camera padronale di 16 mq , affiancata da una camera doppia da 12 mq e una camera singola da 9 mq, ideale come studio o stanza per i più piccoli. Bagno principale, dove la presenza di una vasca idromassaggio trasforma ogni momento in un’esperienza di puro relax.
Scendendo al piano sotto strada, ma con il grande vantaggio di un accesso indipendente anche dall’area esterna, si scopre il “cuore pulsante” della casa: una spaziosa taverna di circa 50 mq. Questo ambiente, servito da un bagno di 7 mq e un pratico cavedio per il ricircolo d’aria, è il luogo ideale per cene conviviali, feste o per creare un’area relax privata.
All’esterno, la proprietà dispone di due garage singoli di 13 mq ciascuno al piano interrato, un posto auto e area esterna parzialmente terrazzata e parzialmente con giardino di 80 mq.
L’abitazione si trova in Via Valle, in un contesto residenziale tranquillo, circondato dal verde ma a breve distanza da tutti i principali servizi, scuole e collegamenti con il centro del paese.
Classe Energetica D – Ipe 182,52 kWh/mq anno
Altre immagini:































