NEGOZIO con MAGAZZINO

Prezzo: €180.000
ID-4302
In vendita
Superficie commerciale 325 m²
Riscaldamento Autonomo
Tipo riscaldamento Pompa di Calore
Classe D
Indirizzo: piazza silva 83, 36035 Marano Vicentino, VI
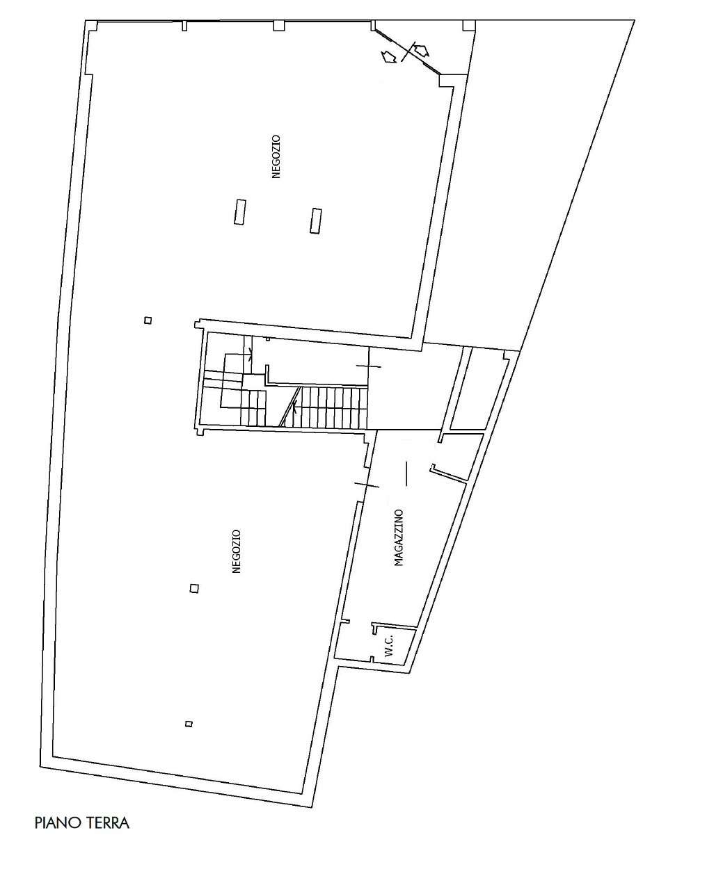
Descrizione: Marano Vicentino : in posizione centralissima e di forte passaggio, proponiamo in vendita un ampio negozio al piano terra di 262 mq, utilizzabile per attività commerciali, showroom o studi professionali.
L’immobile è dotato di un magazzino al piano interrato di 120 mq, perfetto come spazio di stoccaggio o supporto all’attività.
Al piano primo è presente una terrazza di 100 mq ad uso comune con un locale deposito che svolge la funzione di locale tecnico del negozio.
Soluzione versatile, adatta a diverse tipologie di attività, grazie alla posizione strategica e agli spazi ben distribuiti.
Altre immagini:









